
Whether you are a small business, a corporate entity, or a private individual, we present an unique destination that will elevate your event to new heights without the hefty prices of other venues.
Immerse yourself in a diverse array of spaces, each designed to meet your unique needs. Breaks and lunches can be enjoyed in our surrounding gardens which can even be utilised for networking groups or open air events.
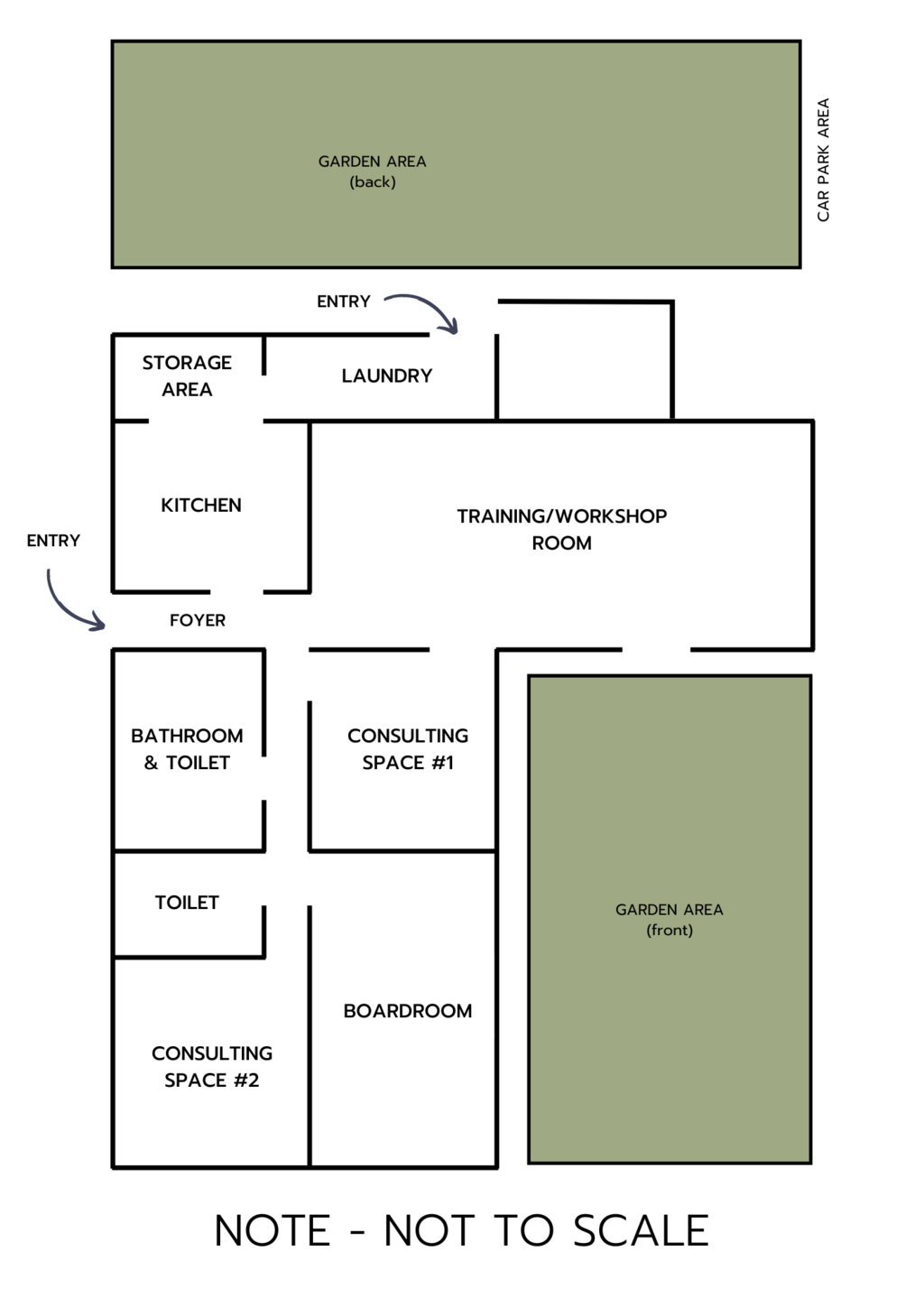
Boardroom Space
Workshop or Training Space
Consultancy and Interview Space


Our boardroom provides the perfect environment to achieve your goals.
Designed to comfortably accommodate 6 to 10 participants, our space showcases three walls adorned with sleek glass whiteboards.
Streamline your objectives with utmost efficiency. Leave a lasting impression on clients while fostering strategic discussions and effortlessly collaborate using the expansive whiteboard space. Seamlessly connect with video conferencing capabilities and captivate clients with engaging presentations on the wall-mounted monitor.
Immerse yourself in a world of professionalism, functionality, and sophistication within our exceptional boardroom. Schedule a tour today and witness firsthand how our boardroom can revolutionise your meetings.


Our meeting and training room leads out to the garden, a space that allows for informal interactions and serves as an additional breakout area during training sessions and workshops.
This room is capable of comfortably accommodating up to 24 guests in a theatre-style arrangement, 18 in U-shape, or 10 in classroom format, or can transform into a vibrant stand-up setting for up to 60 attendees.
The room temperature is easily adjusted to suit the needs and comfort of workshop participants or event guests with air conditioning that cools in the Brisbane summer and warms on the cooler winter morning starts. Ceiling fans are a second option to keep your attendees comfortable and focused.
Communication is easy with three large wall mounted whiteboards, TV monitor and flip chart - all included in your room price


Our consultation and interview rooms provide privacy for negotiations, professional practice, productive conversations and effortless decision-making.
The rooms are air conditioned for comfort and can be heated independently of other areas. You can have full access to the kitchen to grab a quick coffee or tea while continuing any discussion taking place or if you simply need to take a break.
Both rooms have a sit-to-stand desk that you can configure to your preference, with a monitor, whiteboard and couch also included, creating a more relaxed environment..
The rear consultation room has space for you to bring your own massage or treatment table for use with clients, while the front consultant room offers 2 door access for incoming and outgoing clients should it be required for professional consultation needs.

Backing onto parkland, with large old-growth trees, and an abundance of fauna, our backyard offers a tranquil inner-city oasis for small group events. The space is ideal for outdoor educationals, workshops, or group trainings. The back garden area is also available for use as a breakout area and can be used free of charge when you book the training room.

Optimal Space has been converted from an original post war home into a functional event space that offers privacy and convenience. We've retained many of the rooms that make a house a home which adds uniqueness and serviceability as an event and meeting space.

We have the advantage of a fully functioning kitchen.
The kitchen also features a cold filtered water bubbler for a consistent source of chilled water.
Cutlery, service cups, glassware, plates, and platters are available for you convenience.
Catering can be easily kept fresh or reheated with the available microwave.
You have questions - We can provide the answers!
Thanks to our comprehensive "Optimal Space" Kit you can be "in the know" in no time.
Enter your email and click to submit to get the all the
information you need straight to your inbox.
Optimal Space is a pathway to Leadership presented by Optimal Life Solutions
Copyright Optimal Life Solutions - All Rights Reserved
